Wohnhausanlage Brünner Straße 114
1210 1210
klimaaktiv Bronze, Planungsdeklaration, Neubau
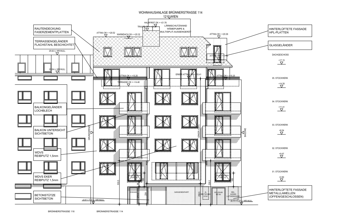
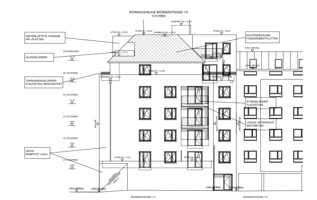
Die Wohnhausanlage umfasst eine Stiege mit insgesamt 27 Wohnungen sowie 12 Stellplätzen. Das Gebäude erstreckt sich über ein Kellergeschoss, Erdgeschoss, fünf Obergeschosse und ein Dachgeschoss. Besondere Nachhaltigkeitsmerkmale sind die zentrale Luftwärmepumpenanlage zur Wärme-, Kälte- und Warmwasserversorgung sowie eine Photovoltaikanlage am Flachdach zur Eigenstromerzeugung. Hochwertige, langlebige Baustoffe, ein effizientes Wärmedämmverbundsystem und moderne Energiestandards gewährleisten einen ressourcenschonenden Betrieb. Die Anlage bietet zeitgemäßen Wohnkomfort, Barrierefreiheit und eine zukunftsfähige Infrastruktur mit digitaler Verbrauchserfassung.
Allgemein
Mehrfamilienhaus, geplante Fertigstellung 2027
klimaaktiv Deklaration: 2025
deklariert nach: Wohnbau 2020.4.2
Beteiligte
BauherrIn / Bauträger:
LIVE Bauträger GmbH
Architekt / Planung:
CHROMY + SCHNEIDER Ges.n.b.R. ZIVILINGENIEURE FÜR HOCHBAU
Bauphysik:
hacon GmbH
Gebäudedeklaration:
hacon GmbH
| Kriterium | Wert |
|---|---|
| Konditionierte Brutto-Grundfläche (BGF) | 2238,3 m² |
| Nettonutzfläche | 1790,6 m² |
| Bauweise | Massivbau |
| Heizsystem Raumheizung | Wärmepumpe |
| Heizsystem Warmwasser | Wärmepumpe |
| Einbau Abluftanlage | berücksichtigt |
| Bereitstellung Warmwasser | dezentral |
Energiedaten berechnet nach OIB Richtlinie 6 - 2023
| Kriterium | Wert |
|---|---|
| Heizwärmebedarf (HWB) | 17,1 kWh/m2a |
| Primärenergiebedarf (PEB) | 64,6 kWh/m2a |
| CO2-Emissionen | 5,7 kgCO2 / m2a |
| lc-Wert | 3,12 m |
| Bruttoraumhöhe | 2,88 m |
| Kriterium | Wert |
|---|---|
| OI3 Index (TGH, BGF, BG1) | 153 |
| Kriterium | Wert |
|---|---|
| Blower Door Test (n50-Wert) | 1.50 1/h |
| Summe VOC | 1000 µg/m³ |
| Formaldehyd | 0,1 mg/m³ |
| Energiemonitoring | berücksichtigt |