Reihenhaus Michael-Pfurtschellerweg 21a - Haus 1
Michael-Pfurtschellerweg 21a, 6166 Fulpmes, Tirol
klimaaktiv Bronze, Fertigstellungsdeklaration, Neubau
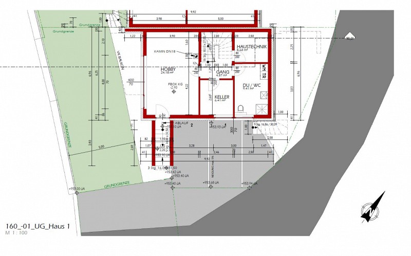
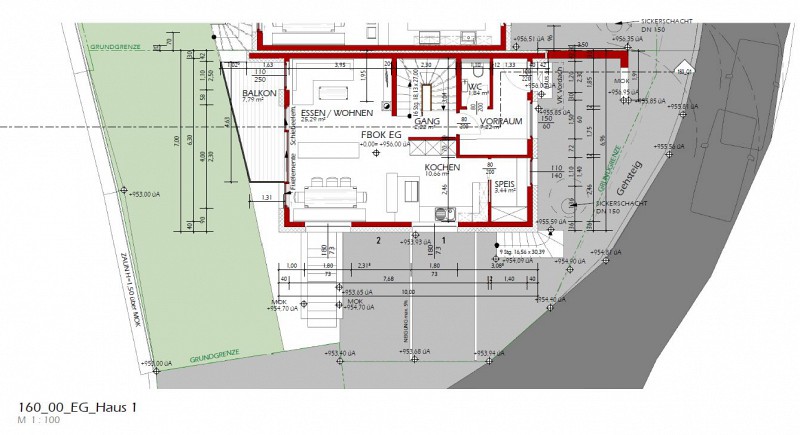
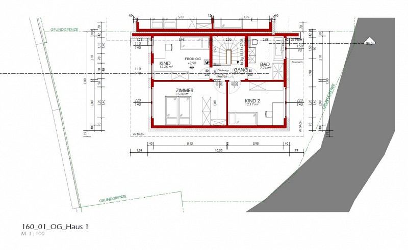
Auf einem ehemaligen Betriebsgelände wurde eine Anlage aus 9 Reihenhäusern in 2 Blöcken aufgeteilt errichtet. Die Marktgemeinde stellte das Wohnhaus zur Verfügung, die Gebäude wurden als Bauherren-Modell realisiert. Errichtung der Gebäude in Massivbauweise mit Holzdachstühlen in Niedrigstenergiebauweise. Die Beheizung erfolgt mit Fernwärme. Eine Komfortlüftung mit Wärme- und Feuchterückgewinnung ergänzt das hocheffiziente Gebäudekonzept.
Allgemein
Mehrfamilienhaus, Fertigstellung 2018
klimaaktiv Deklaration: 2019
deklariert nach: klimaaktiv Kriterienkatalog 2017 - Neubau
Beteiligte
BauherrIn / Bauträger:
Bauherren
Architekt / Planung:
Arch'e concept Bmstr. DI Hansjörg Glatzl
Bauphysik:
Arch'e concept Bmstr. DI Hansjörg Glatzl
Bauleitung / ÖBA:
Arch'e concept Bmstr. DI Hansjörg Glatzl
Gebäudedeklaration: aon
| Kriterium | Wert |
|---|---|
| Konditionierte Brutto-Grundfläche (BGF) | 209.04 m² |
| Nettonutzfläche | 139.28 m² |
| Anzahl der Wohn-/Nutzungseinheiten | 1 |
| Anzahl der Geschoße | 3 |
| Bauweise | Massivbau |
| Heizsystem Raumheizung | Fern- oder Nahwärme erneuerbar |
| Heizsystem Warmwasser | Fern- oder Nahwärme erneuerbar |
| Bereitstellung Warmwasser | zentral |
Energiedaten berechnet nach OIB Richtlinie 6 - 2015
| Kriterium | Wert |
|---|---|
| Heizwärmebedarf (HWB) | 29.78 kWh/m²a |
| Primärenergiebedarf (PEB) | 112.4 kWh/m²a |
| CO2-Emissionen | 7.83 kgCO2/m²a |
| lc-Wert | 1,7241379310345 m |
| Kriterium | Wert |
|---|---|
| OI3 Index (TGH, BGF, BG1) | 93.5 |
| Kriterium | Wert |
|---|---|
| Blower Door Test (n50-Wert) | 0.58 1/h |